 |
|
(ÁÖ)ºÎ¼º¸®½ÎÀÌŬ¸µ - PUSUNG Recycling Co., Ltd.
|
|
(ÁÖ)ºÎ¼º¸®½ÎÀÌŬ¸µ - PUSUNG Recycling Co., Ltd.
|
|
| ¡á (BÁ¦Ç°±º) ¹ÙÀÌ¿À BT2400 À°»óÆ®·¢, Å״Ͻº±¸Àå, ´Ù¸ñÁ¤±¸Àå, ÀÚÀü°Å ¹× Á¶±ë·Î(ECOFLEX) |
.gif) |
| 1. Àû¿ë¹üÀ§ ¹× ºÐ·ù |
| [1.1] Àû¿ë¹üÀ§ |
ÀÌ ±Ô°Ý¼´Â °ø°ø±â°ü¿¡¼ Åä¸ñ ¶Ç´Â °Ç¼³°ø»ç Áß À°»óÆ®·¢, ´Ù¸ñÀû±¸Àåµî¿¡ Àû¿ëÇÏ´Â Àç»ý
ÆóŸÀ̾î°í¹«, EPDM, ¿ì·¹Åº ¹× ±âŸ ź¼ºÆ÷ÀåÀç¿¡ ´ëÇÑ »çÇ×µéÀ» ±ÔÁ¤ÇÑ´Ù. |
| [1.2] ºÐ·ù |
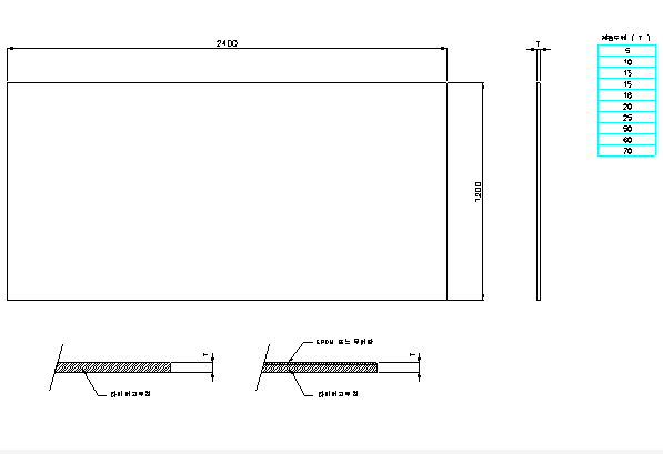
| À°»óÆ®·¢¿¡ Àû¿ëÇÏ´Â ÇϺÎÀÇ Àç»ý °í¹«¸ÅÆ® ¹ÙÀÌ¿À BT2400ÀÇ ±Ô°ÝÀº ´ÙÀ½°ú °°ÀÌ ºÐ·ùÇÑ´Ù. |
(´ÜÀ§:mm) |
¸ð µ¨ ¸í |
±Ô °Ý |
ºñ °í |
¹ÙÀÌ¿À BT2400 |
2400 ¡¿ 1200 ¡¿ 5T |
£ª »óºÎ ¿ì·¹ÅºÃþ Æ÷ÇÔ µÎ²²ÀÓ |
2400 ¡¿ 1200 ¡¿ 10T |
2400 ¡¿ 1200 ¡¿ 13T |
2400 ¡¿ 1200 ¡¿ 15T |
2400 ¡¿ 1200 ¡¿ 18T |
2400 ¡¿ 1200 ¡¿ 20T |
2400 ¡¿ 1200 ¡¿ 25T |
|
| 2. Àû¿ëÀÚ·á ¹× ¹® ¼ |
[2.1] ¿ì¼öÁ¦Ç°ÀÎÁ¤¹øÈ£ Á¦ 2005157È£ (05.12.14) [Á¶´Þû]
[2.2] ƯÇãµî·Ï ¹øÈ£ Á¦0472849È£ (05.2.14) [ƯÇãû]
[2.3] ƯÇãµî·Ï ¹øÈ£ Á¦0472851È£ (05.2.14) [ƯÇãû]
[2.4] GQ¸¶Å© Á¦ °ÇÀç-277È£ [Áß¼Ò±â¾÷û]
[2.5] GR¸¶Å© Á¦2004-11È£, Á¦2002-15È£ [»ê¾÷ÀÚ¿øºÎ]
[2.6] ģȯ°æ¸¶Å© Á¦2960È£ [ȯ°æºÎ] |
| 3. ÇÊ¿äÁ¶°Ç |
| [3.1] Àç·á |
3.1.1 ¿øÀç·á: ÆóŸÀ̾ ºÐ¸®¼ö°ÅÈÄ ºÐ¼âÇÏ¿© ¾òÀº °í¹«Ä¨ ¶Ç´Â °í¹« ºÐ¸»À» »ç¿ëÇϵÇ,
°í¹«Ä¨ÀÇÅ©±â´Â 10mmÀÌÇÏ·Î ÇÑ´Ù. ÆóŸÀ̾î ĨÀ» 75% Á¦Ç°ÀÇ ÇϺΠ·Ñ½ÃÆ®Ãþ¿¡ »ç¿ëÇÏ¿©
¾ß ÇÑ´Ù.
3.1.2 Á¢ÂøÁ¦: °í¹«Ä¨À» ¼ºÇüÇÏ´Â Àü¿ë Á¢ÂøÁ¦¸¦ »ç¿ëÇÏ¿©¾ß Çϸç, »óºÎÃþ ½Ã°ø½Ã »ç¿ëÇÏ´Â
¹ÙÀδõ´Â ÀÎü¿¡ ¹«ÇØÇÑ ¹ÙÀδõ¸¦ »ç¿ëÇÏ¿©¾ß ÇÑ´Ù.
3.1.3 õ¿¬±¤¹°Áú: Ç×±Õ, Ç×°õÆÎÀÌ, Å»Ãë, À½À̿ ¹× ¿øÀû¿Ü¼± ¹æÃâ ±â´É¼º È¿°ú¸¦ ¹ßÈÖÇÒ ¼ö
ÀÖµµ·Ï õ¿¬±¤¹°ÁúÀ» ÀûÁ¤·® ÷°¡ÇÏ¿© Á¦À۵Ǿî¾ß ÇÑ´Ù.
(¹ß¸íƯÇã Á¦0472849È£, Á¦0472851È£)
3.1.4 ±âŸ ÷°¡Àç·á: Á¦Ç°ÀÇ Ç°ÁúÀÌ ³ªºüÁöÁö ¾Ê´Â ¹üÀ§³»¿¡¼ ±× ¿Ü Àû´çÇÑ ÃæÀüÁ¦, È¥ÈÁ¦,
°áÇÕÁ¦ µî ±âŸÀÇ º¸Á¶ Àç·á¸¦ ÷°¡ÇÒ¼ö ÀÖ´Ù. |
| [3.2] ÇüÅ |
ÇϺÎÀÇ Àç»ý°í¹«¸ÅÆ® BT2400ÀÇ ¿ÜÇüµµ´Â ºÙÀÓ1.¿¡ µû¸£µÇ, ±Ô°Ýº° Á¦Ç° µµ¸éÀº ºÙÀÓ2.¿¡
½Ã°ø±âÃþ ´Ü¸éµµ´Â ºÙÀÓ3.¿¡ Ç¥Áصµ¸é ºÙÀÓ4.¿¡ µû¸¥´Ù. |
| [3.3] Á¦Á¶ ¹× °¡°ø |
3.3.1
ÇϺÎÀÇ Àç»ý°í¹«¸ÅÆ® ¹ÙÀÌ¿À BT2400Àº ÀÏÁ¤ÇÑ Åº¼ºÀ» À¯ÁöÇϵµ·Ï Á¦Á¶µÇ¾î¾ß ÇÑ´Ù.
3.3.2 ÇϺÎÀÇ Àç»ý°í¹«¸ÅÆ® ¹ÙÀÌ¿À BT2400Àº 3.1Ç׿¡ ¸í½ÃµÈ Àç·á¸¦ ¿°ú ¾Ð·Â¿¡ ÀÇÇÏ¿© ¾ÐÃà
¼ºÇüÇÏ¿© ½½¶óÀ̽º ¹æ½ÄÀ¸·Î Ä¿ÆÃÇØ¼ Á¦Á¶ÇÑ´Ù. 3.3.3 ÇϺÎÀÇ Àç»ý°í¹«¸ÅÆ® ¹ÙÀÌ¿À BT2400ÀÇ ¸ð¾ç ¹× Ä¡¼ö Çã¿ë¿ÀÂ÷´Â °¡·Î ¹× ¼¼·Î µÎ²² ¡¾2£¥
À̸ç, Ä¡¼ö°øÂ÷´Â Á¦Ç°ÀÇ µÎ²²¿¡ µû¶ó ºñ·ÊÇÏ¿© º¯ÇÒ¼ö ÀÖ´Ù. |
| [3.4] ±â´É ¹× ¼º´É |
3.4.1 º»Á¦Ç°Àº Á߱ݼÓ(³³, Ä«µå´½, Å©·Òµî)ÀÇ ¿ëÃâÀÌ ±âÁØÄ¡ ÀÌÇÏÀÎ ÀÎü À¯Çع°ÁúÀÌ ÀüÇô ¾ø´Â
Á¦Ç°À̾î¾ß ÇÑ´Ù.
3.4.2
»ó´ÜÃþÀÇ ¿ëµµ¿Í »ö»óÀ» ´Ù¾çÈ ÇϱâÀ§ÇØ EPDM°í¹« ¹× À¯»ö¿ì·¹ÅºÀ» ½ÃÆ®ÀÇ µÎ²² ¹æÇâ
À¸·Î ¼¼ÀýÇÏ¿© ¼¼Àý¸éÀ» Àç»ý°í¹«¸ÅÆ® »ó´Ü¿¡ ºÎÂø½Ãų¼öµµ ÀÖ´Ù.
(½Ç¿ë½Å¾Èµî·Ï Á¦0117161È£)
3.4.3
»ó´ÜÃþÀÇ ¿ëµµ¿Í »ö»óÀ» ´Ù¾çÈ ÇϱâÀ§ÇØ EPDM°í¹«, À¯»ö¿ì·¹Åº °í¹« ºÐ¸» 2~5mm¸¦
¿ì·¹Åº Á¢ÂøÁ¦¿Í ¹Í¼ÈÄ »ó´ÜÃþ¿¡ ¾ÐÂøÇÒ ¼ö ÀÖ´Ù. (¹ß¸íƯÇã Á¦0472851È£)
3.4.4 »ó´ÜÃþÀÇ ¿ëµµ¿Í »ö»óÀ» ´Ù¾çÈ ÇϱâÀ§ÇØ °æÁú ¶Ç´Â ¿¬ÁúÀÇ À¯»ö ¿ì·¹Åº¾× ¶Ç´Â ºÐ¸»(Ĩ)À»
¿ì·¹Åº Á¢ÂøÁ¦¿Í ¹Í¼ÈÄ 2~3mmÀÌ»ó ÄÚÆÃ ¶Ç´Â »ìÆ÷ÇÒ ¼ö ÀÖ´Ù. (¹ß¸íƯÇã Á¦0472851È£)
3.4.5 À¯ÇؼºÀÌ ÀüÇô ¾ø°í ¾ÈÀüÇÑ ¼ÒÀçÀÎ ¼ö¿ë¼º ¾ÆÅ©¸±¼öÁö¸¦ ÀÌ¿ëÇÏ¿© »óºÎ ¾ÆÅ©¸±Ãþ
1~1.5mm +ÇϺΠ¹ÙÀÌ¿À BT2400 3-5mmÀÇ º¹Ãþ ½Ã°øÀ» ÇÒ¼öµµ ÀÖ´Ù. |
| [3.5] ¸¶°¨ ¹× ¿Ü°ü |
3.5.1
ÇϺÎÀÇ Àç»ý°í¹«¸ÅÆ® ¹ÙÀÌ¿À BT2400Àº ³»ºÎ, ¿ÜºÎ¿¡ °¥¶óÁö´Â Çö»óÀÌ ¾ø¾î¾ß Çϸç,
Á¦Ç°ÀÇ ²÷¾îÁö´Â Çö»óÀ̳ª Á¢Âø¼ºÀÌ ¾àÇÏ¿© ÀÔÀÚ°¡ ºÐ¸®µÇ´Â Çö»óÀÌ ¾ø¾î¾ß ÇÑ´Ù.
3.5.2
ÇϺÎÀÇ Àç»ý°í¹«¸ÅÆ® ¹ÙÀÌ¿À BT2400ÀÇ Á¦Ç°µµ¸éÀº ºÙÀÓ1.°ú °°´Ù.
3.5.3
ÇϺÎÀÇ Àç»ý°í¹«¸ÅÆ® ¹ÙÀÌ¿À BT2400 Á¦Ç°°ú »óºÎ ¿ì·¹ÅºÃþ°úÀÇ Á¢ÂøºÎÀ§¿¡¼ ¹Ú¸®Çö»óÀÌ
¹ß»ýÇÏÁö ¾Êµµ·Ï ÇÑ´Ù. |
| 4. °Ë»ç ¹× ½ÃÇè |
[4.1] °Ë»ç¹°ÀÇ Å©±â ¹× ±¸¼º¹æ¹ý, ½Ã·áÀÇ Å©±â ¹× äÃë¹æ¹ýÀº KS A 3101(·£´ý»ùÇøµ
¹æ¹ý)¿¡
µû¸¥´Ù. |
[4.2] ¿ÏÁ¦Ç°ÀÇ °Ñ¸ð¾ç, ±Õ¿, ºñƲ¸²µîÀº À°¾ÈÀ¸·Î °Ë»çÇϸç, Ä¡¼ö´Â ±â±¸¸¦ »ç¿ëÇÏ¿© ÃøÁ¤ÇÏ¿©¾ß ÇÑ´Ù. |
[4.3] ¼ö¿ä±â°üÀº ½Ã·á¸¦ äÃëÇÏ¿© °øÀÎ ½ÃÇè±â°ü¿¡ ÀÇ·ÚÇϰųª Á¦Á¶¾÷üÀÇ °øÀÎ ½ÃÇè±â°ü
½ÃÇ輺Àû¼·Î °¡¸§ÇÒ ¼ö ÀÖ´Ù. |
| [4.4] °Ë»ç¹æ¹ý |
| 4.4.1 Àç»ý°í¹«¸ÅÆ®ÀÇ ¹°¸®Àû ¹°¼ºÄ¡´Â ¾Æ·¡ÀÇ Ç¥¿¡ ÁØÇÑ´Ù. |
½Ã Çè Ç× ¸ñ |
´Ü À§ |
ǰ Áú |
Àû ¿ë Ç× ¸ñ |
»óºÎÃþ |
ÇϺÎÃþ |
ÀÎ Àå ° µµ |
MPa |
20ÀÌ»ó |
10ÀÌ»ó |
7.3 |
½Å Àå ·ü |
£¥ |
100ÀÌ»ó |
60ÀÌ»ó |
7.3 |
½ÅÀ念±¸´ÃÀ½·ü |
£¥ |
10ÀÌÇÏ |
10ÀÌÇÏ |
7.4 |
³ëȽÃÇè |
ÀÎÀå°µµº¯ÈÀ² |
£¥ |
³ëÈ Àü °ªÀÇ
£20¡£«20 |
³ëÈ Àü °ªÀÇ
£20¡£«20 |
7.6 |
½ÅÀåÀ²º¯ÈÀ² |
£¥ |
³ëÈ Àü °ªÀÇ
£20¡£«20 |
³ëÈ Àü °ªÀÇ
£20¡£«20 |
7.6 |
Ä¡ ¼ö º¯ È À² |
£¥ |
¡¾5 |
7.7 |
°Ñ¸ð¾ç |
ÈÚ, ±¼°î, ºñƲ¸²µîÀÌ ¹ß»ýÇÏÁö ¾ÊÀ½ |
|
£ª
¸ÅÆ®ÀÇ Ç°ÁúÀº »ó±âÇ¥¿¡ µû¶ó ½ÃÇè ÇÑ´Ù. ´ÜÃþ ±¸Á¶ÀÇ ¼ºÇü¹°ÀÏ °æ¿ì »óÃþºÎ, º¹Ãþ ±¸Á¶ÀÇ ¼ºÇü
¹°ÀÏ °æ¿ì »óÃþºÎ, ÇÏÃþºÎ °¢°¢ÀÇ Ç°Áú ±âÁØ¿¡ ÀûÇÕÇÏ¿©¾ß ÇÑ´Ù. £ª º» ½ÃÇèÀº µÎ²² ¹× ÀçÁú¿¡ µû¶ó º¯µ¿µÊ. |
4.4.2 Àç»ý°í¹«¸ÅÆ®ÀÇ ÈÇÐÀû ¹°¼ºÄ¡´Â KICM-FIR-1002, KICM-FIR
-1005, KICM-FIR-1042, KICM-FIR-1085, ASTM G-21¸¦ ±âÁØÀ¸·Î ½ÃÇèÇÑ´Ù.
4.4.3 »óºÎ ¿ì·¹ÅºÀÚÀçÀÇ ¹°¸®Àû Ư¼ºÄ¡´Â ¾Æ·¡Ç¥¿¡ ÁØÇÑ´Ù. |
±¸ ºÐ |
½Ã Çè Ç× ¸ñ |
±â ÁØ |
Àû ¿ë Ç× ¸ñ |
¿ì·¹ÅºÃþ (°í°æÁúÃþ) |
°æµµ(20¡É, Shore A) |
90¡100 |
KS M 6518 |
ÀÎÀå°µµ N/c§³(kgf/c§³) |
880(89.7)ÀÌ»ó |
KS M 6518 |
|
340(34.7)ÀÌ»ó |
KS M 6518 |
½ÅÀåÀ²(£¥) |
150ÀÌ»ó |
KS M 6518 |
¿ì·¹ÅºÃþ (°æÁúÃþ) |
°æµµ(20¡É, Shore A) |
70¡90 |
KS M 6518 |
ÀÎÀå°µµ N/c§³(kgf/c§³) |
588.49(60)ÀÌ»ó |
KS M 6518 |
Àο°µµ N/cm(kgf/cm) |
245.2(25)ÀÌ»ó |
KS M 6518 |
½ÅÀåÀ²(£¥) |
250ÀÌ»ó |
KS M 6518 |
¿ì·¹ÅºÃþ (¹Ý°æÁúÃþ) |
°æµµ(20¡É, Shore A) |
50¡70 |
KS M 6518 |
ÀÎÀå°µµ N/c§³(kgf/c§³) |
245.2(25)ÀÌ»ó |
KS F 3211 |
Àο°µµ N/cm(kgf/cm) |
147.1(15)ÀÌ»ó |
KS F 3211 |
½ÅÀåÀ²(£¥) |
450ÀÌ»ó |
KS F 3211 |
Ç×ÀåÀû N/cm(kgf/cm) |
2942.0(300)ÀÌ»ó |
KS F 3211 |
¿ì·¹ÅºÃþ (¿¬ÁúÃþ) |
°æµµ(20¡É, Shore A) |
40¡50 |
KS M 6518 |
ÀÎÀå°µµ N/c§³(kgf/c§³) |
146(14.9)ÀÌ»ó |
KS F 3211 |
Àο°µµ N/cm(kgf/cm) |
77(7.85)ÀÌ»ó |
KS F 3211 |
½ÅÀåÀ²(£¥) |
450ÀÌ»ó |
KS F 3211 |
|
| 4.4.4 ½ÃÇè¹æ¹ý |
Àç»ý°í¹«¸ÅÆ®ÀÇ ½ÃÇè¹æ¹ýÀº GR M 6006¿¡ µû¸¥´Ù. |
| 5. Æ÷Àå ¹× Ç¥½Ã |
ÇϺÎÀÇ Àç»ý°í¹«¸ÅÆ® BT2400Àº ·Ñ½ÃÆ® ÇüÅ·ΠĿÆÃ Á¦ÀÛÇÏ¿© ÆÄ·¹Æ® ´ÜÀ§·Î ÇöÀå¿¡ ³³Ç°Çϸç,
·¦Æ÷Àå ¿ÜºÎ¿¡´Â Á¦Á¶»ç, Á¦Á¶±¹°¡, Á¦Á¶ÀϽÃ, ½ÃÆ®ÀÇ ±æÀÌ, Á¦Ç°ÀÇ ±âº» »ö»óµîÀÌ ¸í½ÃµÇ¾î ÀÖ¾î¾ß
ÇÑ´Ù. |
| 6. ¿ëµµ ¹× ¹ßÁÖÀç¿ø |
[6.1] ¿ëµµ : ÇϺÎÀÇ Àç»ý°í¹«¸ÅÆ® ¹ÙÀÌ¿À BT2400Àº À°»óÆ®·¢¿ë ·Ñ½ÃÆ®°¡ ÁÖ¿ëµµÀ̸ç, ±× À̿ܿ¡
µµ ½ºÆ÷Ã÷ ½Ã¼³, ¾î¸°ÀÌ ³îÀ̽ü³, °ø¿ø, »êÃ¥·Î, µîÀÇ ¹Ù´Ú¿¡ ź¼ºÀ» ÁÖ±â À§ÇÑ ±â´É¼º ·Ñ½Ã
Æ® ¸ÅÆ®·Î »ç¿ëÇÒ ¼ö ÀÖ´Ù. |
[6.2] ¹ßÁÖÀç¿ø : ÇϺÎÀÇ Àç»ý°í¹«¸ÅÆ® ¹ÙÀÌ¿À BT2400ÀÇ ¹ßÁÖ ´ÜÀ§´Â §³ ´ÜÀ§·Î ¹ßÁÖÇÔÀ»
¿øÄ¢À¸·Î ÇÑ´Ù. |
| 7. ½Ã°ø¹æ¹ý ¹× ½Ã°ø ÇöÀå°ü¸® |
| [7.1] ½Ã°ø¼ø¼ |
(1) ÇÏÁö¸é Á¤¸®
¨ç ÄÜÅ©¸®Æ® Æ÷ÀåÈÄ 15ÀÏÀÌ»ó ¾ç»ýµÇ¾î¾ßÇϸç ÄÜÅ©¸®Æ®¿¡ ÇÔÀ¯µÈ ºÐÁøÀ» ¼¼Ã´ Á¦°ÅÇÏ¿©¾ßÇÑ´Ù.
¨è ¾Æ½ºÄÜ Æ÷ÀåÈÄ 20ÀÏÀÌ»ó ¾ç»ýµÇ¾î¾ßÇÏ¸ç ¾Æ½ºÄÜ¿¡ ÇÔÀ¯µÈ À¯ºÐÀº ¼¼Ã´ Á¦°ÅÇÏ¿©¾ß ÇÑ´Ù.
¨é ÄÜÅ©¸®Æ® ¶Ç´Â ¾Æ½ºÄÜÀÇ ÆÐÀÎ ºÎºÐÀ̳ª ¿¬¾àºÎºÐÀ» ÃæÁøÁ¦·Î Ç¥¸éÀ» º¸°ÇÑ´Ù.
¨ê ÇÏÁö¸é ÄÜÅ©¸®Æ® ¾Æ½ºÄÜÀº ¼³°èµÎ²²¿Í ±¸¹è¿Í ·¹º§¸µÀ» °¨¸® È®ÀÎÈÄ °øÁ¤¿¡ µé¾î°£´Ù.
(2) ÇÁ¶óÀÌ¸Ó µµÆ÷
ÇÏÁö¸éÀÇ Ç¥¸é¿¡ ·¹ÀÌÅϽº, À¯ºÐ ¹× ±âŸ À̹°ÁúÀ» ¿ÏÀüÈ÷ Á¦°ÅÈÄ ÇÁ¶óÀÌ¸Ó µµÆ÷ ÀÛ¾÷¿¡ µé¾î
°¡¾ß Çϸç, ±× ´ÜÀ§ ¸éÀû´ç µµÆ÷·®Àº 0.4kg/§³ ÀÌ»óÀ¸·Î ÇØ¾ßÇÑ´Ù.
(3) ¹ÙÀÌ¿À BT2400 Á¢Âø ½Ã°ø
¨ç Æú¸®¿ì·¹Åº°è Àü¿ë Á¢ÂøÁ¦¸¦ ÇÏÁö¸é¿¡ Á¢ÂøÁ¦ 1.3-1.5§¸/§³ À» µµÆ÷ÈÄ BT2400 ·Ñ ¸ÅÆ®¸¦
Á¢ÂøÇÑ´Ù.
¨è Á¢Âø ÈÄ 10§¸Áß·® ÀÌ»óµÇ´Â ·Î¶ó·Î BT2400·Ñ ¸ÅÆ®°¡ ÇÏÁö¸é°ú ºÎÂøµÉ¼ö ÀÖµµ·Ï ·Ñ¸µÇϸç
¸ÅÆ®¿Í ÀÌÀ½ºÎºÐ°ú µé¶ä ºÎºÐÀº ¸ð·¡ ÁÖ¸Ó´Ï º®µ¹µîÀ» ´·¯³õ¾Æ µé¶äÇö»óÀÌ ¾øµµ·Ï ÁÖÀÇÇÑ´Ù.
(Á¢Âø ¾ç»ý½Ã°£Àº 12½Ã°£Á¤µµ À̸ç ÀÌ¿¡ ¸ÂÃç ±âÈÄ Á¶°Ç¿¡ µû¶ó ÀÛ¾÷ °øÁ¤ ¹× ÀÏÁ¤°èȹÀ» ¼¼¿î´Ù) |
| [7.2] »óºÎ ¿ì·¹Åº ½Ã°ø½Ã |
(1) ¿ìõ½Ã³ª »ó´ë½Àµµ°¡ 85ÀÌ»óÀ¸·Î ³ôÀº³¯, 30¡ÉÀÌ»óÀÎ ³¯¿¡´Â °¡±ÞÀû ½Ã°øÀ» ÇÇÇØ¾ß ÇÑ´Ù.
(2) ¹ÙÀÌ¿À BT2400(10T) ź¼ºÃþÀÇ Ç¥¸éó¸®(Sealing)´Â ÇϺÎÀÇ Ãµ¿¬ ±¤¹°Áú ºÐ¸»¿¡ ÀÇÇÑ Ç×±Õ,
Ç×°õÆÎÀÌ ¹ÙÀÌ¿À È¿°ú¿Í Åõ¼ö°ø±ØÀ²À» ³ôÀÌ´Â È¿°ú¸¦ À§ÇØ ÇöÀåÀÇ ¿©°Ç¿¡ µû¶ó SealingÀÛ¾÷À»
»ý·«ÇÒ ¼öµµ ÀÖ´Ù. Sealing ÀÛ¾÷½Ã µµÆ÷·®Àº 1.0kg/§³ ÀÌ»óÀ¸·Î ÇØ¾ßÇÑ´Ù.
(3) »óºÎ ¿ì·¹ÅºÃþ ½Ã°ø½Ã, È¥ÇÕµÈ Àç·á´Â 1Â÷ °¡»ç½Ã°£(¾à 30ºÐ) À̳»¿¡ »ç¿ëÇÏ¿©¾ß ÇÑ´Ù.
(4) »óºÎÃþÁß 1Â÷ ¿ì·¹Åº ÀÛ¾÷ÃþÀÇ °æÈ¸¦ È®ÀÎÇÑ ÈÄ ¹°ÀÌ °íÀÌ´Â ºÎºÐÀ» CheckÇÏ¿© ÀçÆòź
ÀÛ¾÷À» ÇÏ¿©¾ß ÇÑ´Ù.
(5) Edge(¸ð¼¸®)ºÎºÐÀÇ ¸¶°¨Àº ·Ñ½ÃÆ®ÀÇ Ãø¸éÀ» ¿ì·¹ÅºÀÌ ¿ÏÀüÈ÷ °¨½Îµµ·Ï ¸¶°¨Ã³¸® ÇÏ¿©¾ß
Çϰí, ¹è¼ö·Î ¹× ÁÖº¯ ±¸Á¶¹°ÀÌ ¿À¿°µÇÁö ¾Êµµ·Ï »çÀü¿¡ µ¤°³¸¦ ¾º¿ì°í ½Ã°øÇÏ¿©¾ß ÇÑ´Ù.
(6) žÃþ½Ã°ø½Ã ¿ì·¹ÅºÄ¨À» ¹Ý°æÁúÃþ°ú ÇÔ²² ÃÖ´ëÇÑ ±ÕÀÏÇÏ°Ô Æ÷¼³ÇÏ°í ¾ç»ýÈÄ ÀÜ¿©Ä¨Àº
ÈíÀÔ±â·Î »¡¾Æµé¿© ±ò²ûÇÏ°Ô Ã³¸®ÇØ¾ß ÇÑ´Ù.
(7) °í¾Ð½ºÇÁ·¹ÀÌ ¶Ç´Â ·Î¿ï·¯·Î žÃþ ¿ì·¹Åº ÄÚÆÃÀ» Çϸç, Ĩ ¹Ú¸® Çö»óÀÌ ¾øµµ·Ï ¿ì·¹Åº ¼öÁö°¡
ĨÀ» È®½ÇÈ÷ °¨½Îµµ·Ï ÇØ¾ßÇÑ´Ù. (žçÀÇ º¹»ç¿ Â÷´Ü°ø¹ý Ư¼ö ¼¼¶ó¹Í ºñµå ó¸®) ÁÖ¹® »ç¾ç
(8) Line MarkingÀº ¹«È²º¯ ¿ì·¹Åº ÆäÀÎÆ®·Î ¶óÀÎÆø 5cm¸¦ ÀÏÁ¤ÇÏ°Ô À¯ÁöÇÏ¸é¼ µµ»öÇØ¾ß Çϸç,
»ö»óÀº ¹é»ö, ÁøÈ²»ö, ÁÖȲ»öÀ¸·Î ÇÑ´Ù. |
|
|
Æ®·¢ ¿ÜÃø(°æ°è¼® ¼³Ä¡ºÎ) ¸¶°¨ »ó¼¼µµ |
|
|
Æ®·¢ ³»Ãø(³»Ãø¹è¼ö·Î ¼³Ä¡ºÎ) ¸¶°¨ »ó¼¼µµ |
 |
|
| [7.3] Àç»ý°í¹«¸ÅÆ® Á¢Âø½Ã°ø½Ã ÁÖÀÇ»çÇ× |
(1) ÀÛ¾÷ ÇöÀå¿¡´Â ¹Ýµå½Ã ¼Òȱ⸦ ºñÄ¡ÇØ¾ß ÇÑ´Ù.
(2) ½Ã°ø¿ë Àü¿ë Á¢ÂøÁ¦´Â ½Ã°øÇöÀå¿¡¼ ¹èÇÕÇØ¾ßÇÑ´Ù.
¨ç Àü±â ÇÚµå µå¸± Áغñ
¨è ÇÁ·ÎÆç¶ó Áغñ
¨é µµÆ÷¿ë ÄÚ´õ ±Ô°ÝÈ
¨ê °¡¿¬¼º ¹°Áú ¹× ȱâ ÁÖÀÇ - Á¢ÂøÁ¦ 1set´ç ÀûÁ¤·®ÀÇ Àü¿ë¿ëÁ¦ »ç¿ë(Åç·ç¿£ »ç¿ë ±ÝÁö)
(3) Ã˸ŠÁö±ÞÀº ¼ÒÇü À¯¸®¿ë±â¿¡ ³Ö¾î¼ Áö±ÞÇÏ°í »ç¿ë½Ã °¢º°ÇÑ ÁÖÀǸ¦ ÇØ¾ßÇÑ´Ù.
(4) ½Ã°ø½Ã ¹ÙµÏÆÇ °°ÀÌ »çÀü ÁÙ´« ÀÛ¾÷ÈÄ ½Ã°øÇÏ¸é ½Ã°øÀÌ ¿ëÀÌÇÏ´Ù.
(5) ¾ÈÀü°ü·Ã ÁÖÀÇ»çÇ×
¨ç ÁöÁ¤µÈ ¿ë±â¿¡ ´Ù¸¥ ¹°ÁúÀÌ È¥ÀÔµÇÁö ¾Êµµ·Ï ÁÖÀÇÇÏ°í ºó ¿ë±âÀÇ °æ¿ì¿¡µµ ´Ù¸¥ ¹°ÁúÀ»
ÀúÀåÇÏÁö ¾Êµµ·Ï ÇØ¾ßÇÑ´Ù.
: ¹ßÆ÷ÀÇ À§Çè ÀÖÀ½ (Á¢ÂøÁ¦¿Í ¹° È¥Çսà ¹ßÆ÷ÇÔ)
¨è ¿ëÁ¦ ¹× Ã˸ÅÀÇ ½ÅüÁ¢ÃË(ƯÈ÷ ¾È±¸ Á¢ÃË ÁÖÀÇ)À» ÁÖÀÇÇØ¾ßÇÑ´Ù.
: ½Åü Á¢ÃË ¶Ç´Â ÈíÀԽà ±ú²ýÇÑ ¹°·Î ¾Ä¾î³»°í Áï½Ã Àü¹®ÀÇÀÇ Áø·á¸¦ ¹ÞÀ» °Í
¨é Èֹ߼ºÀÌ °ÇϹǷΠÀÜ·®ÀÌ ³²Áö ¾Êµµ·Ï °¡±ÞÀû Àü·®À» »ç¿ëÇØ¾ß ÇÑ´Ù.
- È¥ÇÕÀü Á¦Ç°Àº ÅëdzÀÌ Àß µÇ°í Á÷»ç±¤¼±À» ÇÇÇÒ ¼ö ÀÖ´Â ¼´ÃÇÑ Àå¼Ò¿¡ º¸°ü
- Á¢ÂøÁ¦¿Í ¿ëÁ¦ È¥ÇÕÀº º¸°üÀÌ ºÒ°¡ÇÔ(°æÈµÊ)
¨ê Á¦Ç°¿¡ ¿ÀÀÏ ¶Ç´Â ±âŸ À¯±â ¿ëÁ¦ÀÇ Á¢ÃËÀ» ÇÇÇØ¾ß ÇÑ´Ù.
:Á¦Ç° ¼º»óÀÇ º¯ÇüÀ» ÃÊ·¡ÇÔ
¨ë ½Ã°ø½Ã ÇöÀå¿¡¼ Èí¿¬Àº ±ÝÁöÇØ¾ß ÇÑ´Ù.
¨ì ½Ã°ø½Ã °í¹«Á¦Ç°ÀÇ Àý´ÜÀÌ ÇÊ¿ä½Ã °íÁ¤¿ë Àý´Ü±â¸¦ »ç¿ëÇÏ¿©¾ßÇÑ´Ù
Ä®·Î Àý´Ü½Ã ÁÖÀ§ »ç¶÷°ú Àڱ⠸öÀ¸·Î Ä®ÀÌ ½ºÄ¡´Â °ÍÀ» ¹Ì¸® °æ°èÇϸç ÀÚ¼¼¸¦ Àß ¸ÂÃç Ä®ÁúÀ»
ÇÏ¿©¾ß ÇÑ´Ù.
¨í BRQT ½Ã°ø½Ã »óºÎ ´ë¸®¼®À» Àý´Ü½Ã °íÁ¤¿ë Àý´Ü±â¸¦ »ç¿ëÇÏ¿©¾ß ÇÏ¸ç ¾ÈÀü ¿ë±¸¸¦ Âø¿ëÇÏ¿©¾ß
ÇÑ´Ù. ÇÚµå ÄÆÆÃ±â¸¦ »ç¿ëÇҽà ¾ÈÀü¿ë±¸¸¦ Âø¿ëÇϰí ÁÖÀ§ »ç¶÷ÀÇ ¾ø´Â °÷¿¡¼ »ç¿ëÇÏ¿©¾ß ÇÑ´Ù.
(6) ÇϺÎÀÇ Àç»ý°í¹«¸ÅÆ® ¹ÙÀÌ¿À BT2400À» Á¢ÂøÇÒ ¶§ »ç¿ëÇÏ´Â µµÆ÷¿ë ÄÚ´õ´Â ¾Æ·¡ÀÇ Á¦ÀÛµµ¸¦ ±âÁØÀ¸·Î
ÀÀ¿ë Á¦ÀÛÇÏ¿© »ç¿ëÇÑ´Ù. |
| |
µµÆ÷¿ë ÄÚ´õ Á¦ÀÛµµ
|
(´ÜÀ§ : mm) |
| µµÆ÷·® : 350 g/§³ |
|
| |
| µµÆ÷·® : 600 g/§³ |
|
|
| ºÙÀÓ1. ÇϺÎÀÇ Àç»ý°í¹«¸ÅÆ® ¹ÙÀÌ¿À BT2400 ·Ñ½ÃÆ® ¿ÜÇüµµ |
|
|
| ºÙÀÓ2. ÇϺÎÀÇ Àç»ý°í¹«¸ÅÆ® ¹ÙÀÌ¿À BT2400ÀÇ µµ¸é |
 |
|
| ºÙÀÓ3. ½Ã°ø ±âÃþ ´Ü¸éµµ |
¡á ¹ÙÀÌ¿À À°»óÆ®·¢ ½Ã°ø ´Ü¸éµµ |
 |
|
¡á ¹ÙÀÌ¿À ´Ù¸ñÀû±¸Àå ½Ã°ø ´Ü¸éµµ |
 |
|
¡á Å״Ͻº±¸Àå(¾ÆÅ©¸±) ½Ã°ø±âÃþ ´Ü¸éµµ |
|
|
¡á ¹ÙÀÌ¿À BT2400·Ñ ½Ã°ø ¼ø¼Ãþ |
|
|
| ºÙÀÓ4. Ç¥ÁØ µµ¸é (À°»óÆ®·¢, ´Ù¸ñÀû±¸Àå, Å״ϽºÀåµî) |
| |
|
| ºÙÀÓ5. ³ó±¸Àå(´Ù¸ñÀû±¸Àå) Ç¥ÁØ µµ¸é |
 |
|
| ºÙÀÓ6. ¹è±¸Àå(´Ù¸ñÀû±¸Àå) Ç¥ÁØ µµ¸é |
 |
|
| ºÙÀÓ7. Å״ϽºÀå(´Ù¸ñÀû±¸Àå) Ç¥ÁØ µµ¸é |
 |
|